PULSE HOTEL
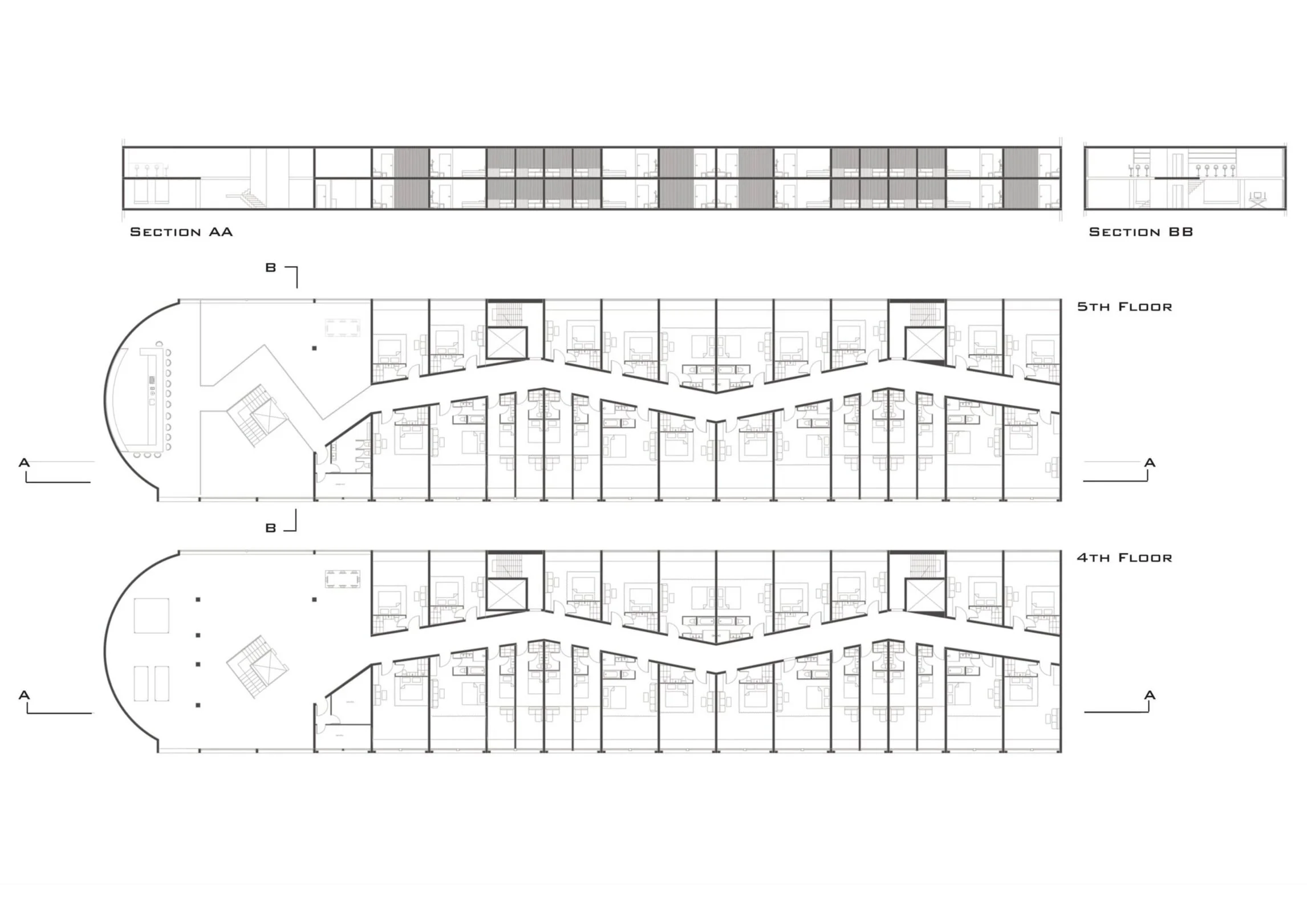
The task was to create a conceptual hotel in an existing parking lot at Alexanderplatz. The inspiration for the hotel came from the well-known nightlife of Berlin which attracts many DJs from around the world. Each room was designed to let artists rest after their set or flight and be able to practice before their set. zig-zag shaped dark corridor with it’s corners creates the feeling of a club that intrigues.